Prodej rodinného domu, 121 m², Ostrov


Nabízíme k prodeji hrubou stavbu dvoupatrového rodinného domu v klidné lokalitě Dolní Žďár u Ostrova, která představuje ideální příležitost pro realizaci bydlení podle vlastních představ.
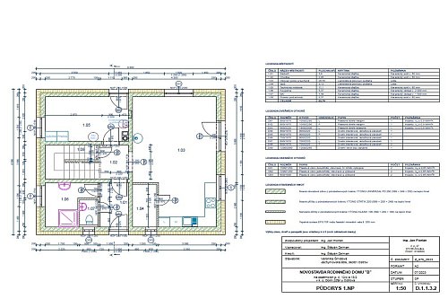
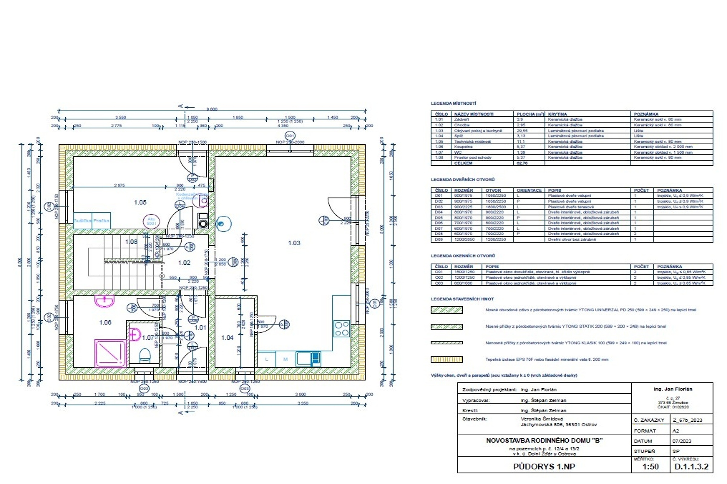
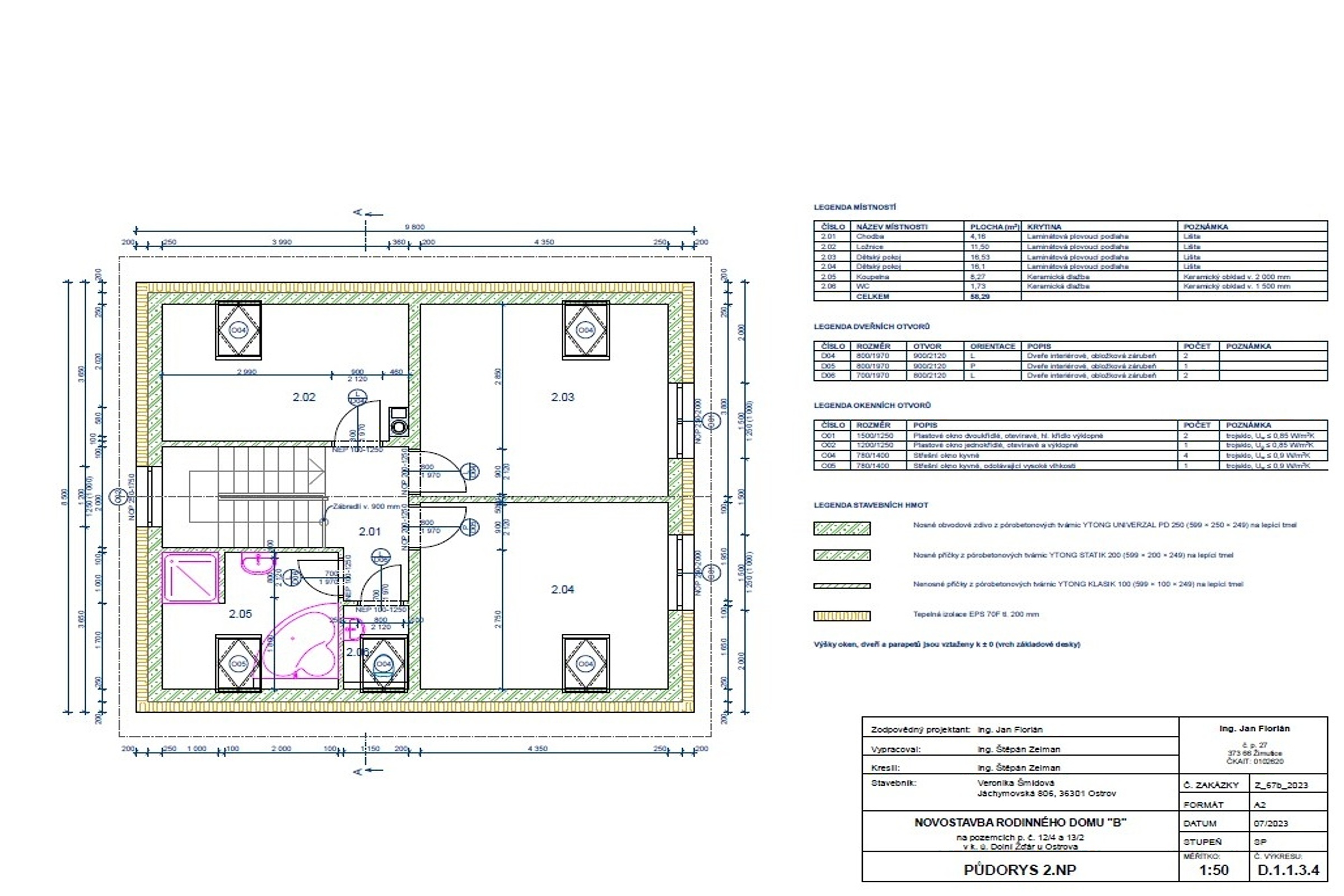
Dům má zastavěnou plochu 83 m² a je navržen jako dvoupodlažní objekt s plánovanou dispozicí 4+kk, která počítá s komfortním rodinným bydlením. Součástí návrhu je také velká technická místnost, poskytující dostatek prostoru pro technologie domu i praktické zázemí. Celková užitná plocha činí 121 m². Dispoziční řešení je však možné upravit dle vlastních představ, což dává budoucímu majiteli maximální flexibilitu při dokončení stavby.
Na pozemek o ploše 481 m2 jsou zavedeny veškeré inženýrské sítě – veřejný vodovod, plyn, elektřina a odpady jsou svedeny do obecní splaškové kanalizace.
Nemovitost nabízí ideální rovnováhu mezi hotovou stavbou a možností dotvořit si dům přesně podle svých potřeb. Lokalita Dolní Žďár u Ostrova je vyhledávaná pro své klidné prostředí, dobrou dostupnost do Karlových Varů a také rychlé spojení k oblíbeným lyžařským střediskům Plešivec a Klínovec, což ocení nejen milovníci zimních sportů, ale i aktivního životního stylu.
V případě zájmu o více informací nebo sjednání osobní prohlídky mě neváhejte kontaktovat.
CENA 4.000.000 Kč
Narodil jsem se v Karlových Varech. Úžasné dětství jsem prožil v malebném historickém městě Loket. V současnosti žiji již dlouhou dobu přímo v Karlových Varech. Miluji zdejší atmosféru a procházky po okolních lázeňských lesích.
V průběhu života jsem nasbíral mnoho zkušeností v různých oblastech, stavebnictví, elektro, strojírenství a IT. Vše co jsem se naučil, nyní s radostí využívám při své práci realitního makléře. Dá se říci, že jsem se našel. Baví mě práce s lidmi a myslím, že díky daru empatie umím nacítit potřebu klienta. Mé předchozí pracovní aktivity byly vždy spojené s úctou a profesionálním přístupem.
Když jsem se rozhodoval, pod kterou realitní kancelaří budu pracovat, padla jasná volba na M&M reality, která je NEJDŮVĚRYHODNĚŠÍ ZNAČKOU mezi realitními kancelářemi od roku 2017.
Práce realitního makléře mě skutečně baví a snažím se ji odvádět na špičkové úrovni. Prezentaci a prodej nemovitosti provádím s využitím profesionálního fotografa, točím VIDEOPROHLÍDKY, používám dron, připravuji a tisknu KATALOG, standardem je 3D PŮDORYS nemovitosti. Vytvářím Home Staging, pracuji a reklamuji na sociálních sítích. V případě více zájemců, bude při prodeji použita online elektronická AUKCE, při které se cena nemovitosti transparentně zvyšuje ... vše s jasným cílem. Prodat vaši nemovitost za co nejvyšší cenu k vaší plné spokojenosti. Spokojenost klientů je můj cíl, a mé přání.
Proč vznikly tyto stránky?
Abych zde prezentoval, že když dva dělají totéž, nikdy to není totéž. Je všeobecně známo, že rozdíl mezi makléři je řekněme nemalý. Prosím, přečtěte si mé tipy a články, nebo můj E-BOOK. Věřím, že vám tyto informace pomohou v rozhodování a že si pro prodej nemovitosti zvolíte tu správnou cestu.
Za každým prodejem nemovitosti se totiž skrývá lidský příběh. A to je důvod, proč by nikdo neměl tak důležitý životní krok podceňovat. Ani prodávající, ani váš makléř.
Záleží mi na odvedení špičkové práce a na spokojenosti klienta. A dbám na svém dobrém jménu a pověsti. Za mě pak hovoří reference spokojených klientů.
Pokud jste dočetli až sem, máte můj obdiv a děkuji Vám. Pokud Vás cokoliv dalšího zajímá, neváhejte mě kontaktovat.
Rád se s Vámi sejdu, probereme vaše přání a představy. Zvu vás na kávu, čaj, nebo prostě na něco dobrého.