Prodej rodinného domu, 518 m², Andělská Hora


Nabízíme k prodeji bytový dům určený k rekonstrukci, nacházející se v obci Andělská Hora, na klidném okraji lázeňského města Karlovy Vary. Tato nemovitost představuje zajímavou investiční příležitost pro developery i soukromé investory, kteří hledají projekt s potenciálem dalšího zhodnocení.
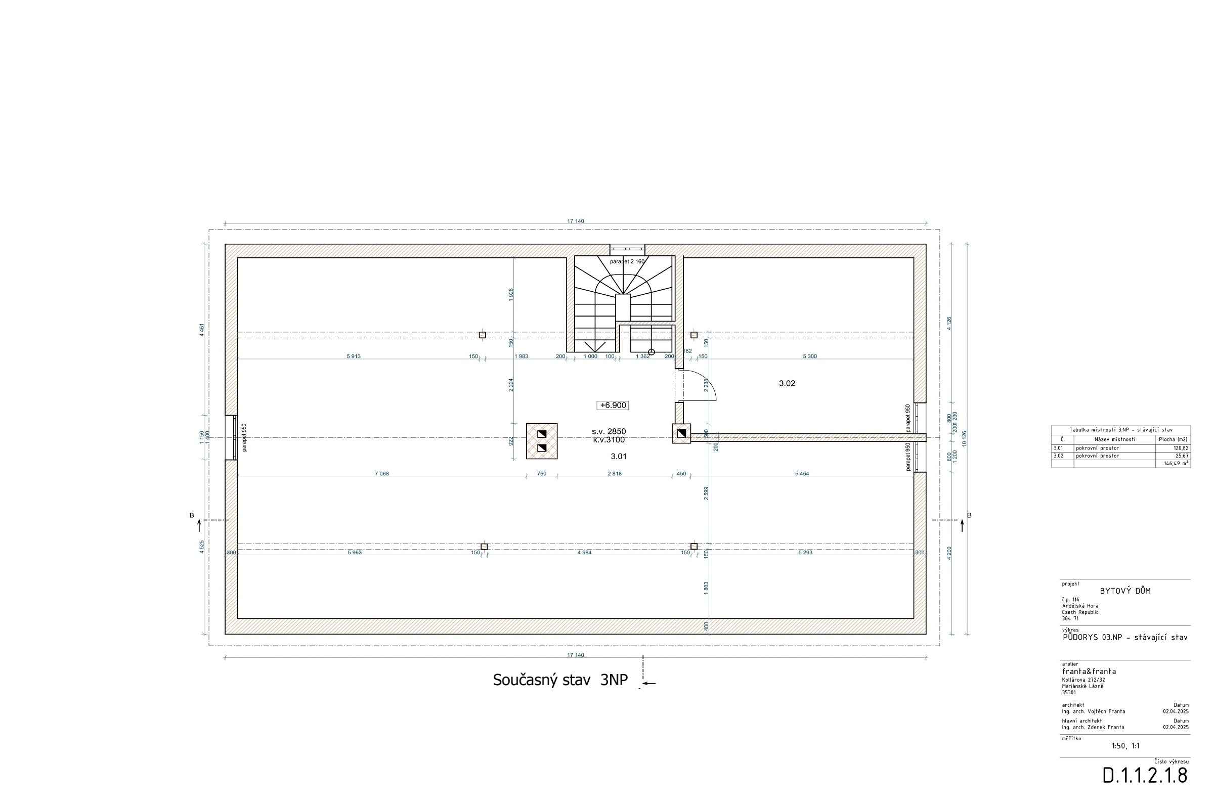
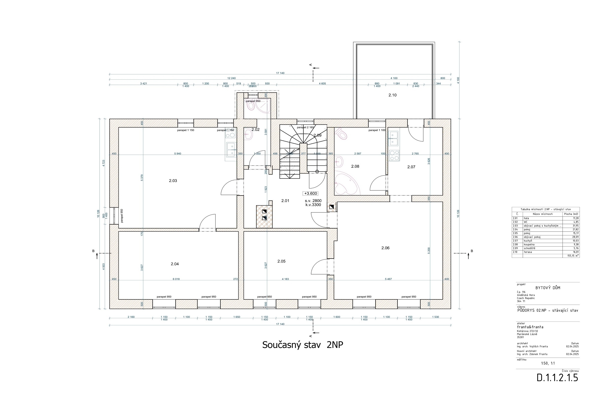
Dům je v současné době určen ke kompletní rekonstrukci dle vlastních představ nového majitele. Zároveň je k dispozici připravená studie, podle které lze v objektu vybudovat celkem 6 bytových jednotek, konkrétně 3 byty o dispozici 3+kk a 3 byty o dispozici 2+kk, všechny s vlastní terasou. Takové řešení nabízí moderní a atraktivní bydlení, které odpovídá současným požadavkům trhu.
Nemovitost je napojena na veškeré inženýrské sítě s výjimkou plynu, což výrazně usnadňuje budoucí rekonstrukci a realizaci projektu. Lokalita Andělské Hory kombinuje klidné bydlení v blízkosti přírody s dobrou dostupností do Karlových Varů, což zajišťuje atraktivitu jak pro budoucí vlastní bydlení, tak pro dlouhodobý či krátkodobý pronájem.
Tato nabídka představuje zajímavou investici s možností vytvoření kvalitního bytového projektu v žádané lokalitě Karlovarska. Pro více informací nebo sjednání prohlídky mně neváhejte kontaktovat.
CENA 5.900.000 Kč
Narodil jsem se v Karlových Varech. Úžasné dětství jsem prožil v malebném historickém městě Loket. V současnosti žiji již dlouhou dobu přímo v Karlových Varech. Miluji zdejší atmosféru a procházky po okolních lázeňských lesích.
V průběhu života jsem nasbíral mnoho zkušeností v různých oblastech, stavebnictví, elektro, strojírenství a IT. Vše co jsem se naučil, nyní s radostí využívám při své práci realitního makléře. Dá se říci, že jsem se našel. Baví mě práce s lidmi a myslím, že díky daru empatie umím nacítit potřebu klienta. Mé předchozí pracovní aktivity byly vždy spojené s úctou a profesionálním přístupem.
Když jsem se rozhodoval, pod kterou realitní kancelaří budu pracovat, padla jasná volba na M&M reality, která je NEJDŮVĚRYHODNĚŠÍ ZNAČKOU mezi realitními kancelářemi od roku 2017.
Práce realitního makléře mě skutečně baví a snažím se ji odvádět na špičkové úrovni. Prezentaci a prodej nemovitosti provádím s využitím profesionálního fotografa, točím VIDEOPROHLÍDKY, používám dron, připravuji a tisknu KATALOG, standardem je 3D PŮDORYS nemovitosti. Vytvářím Home Staging, pracuji a reklamuji na sociálních sítích. V případě více zájemců, bude při prodeji použita online elektronická AUKCE, při které se cena nemovitosti transparentně zvyšuje ... vše s jasným cílem. Prodat vaši nemovitost za co nejvyšší cenu k vaší plné spokojenosti. Spokojenost klientů je můj cíl, a mé přání.
Proč vznikly tyto stránky?
Abych zde prezentoval, že když dva dělají totéž, nikdy to není totéž. Je všeobecně známo, že rozdíl mezi makléři je řekněme nemalý. Prosím, přečtěte si mé tipy a články, nebo můj E-BOOK. Věřím, že vám tyto informace pomohou v rozhodování a že si pro prodej nemovitosti zvolíte tu správnou cestu.
Za každým prodejem nemovitosti se totiž skrývá lidský příběh. A to je důvod, proč by nikdo neměl tak důležitý životní krok podceňovat. Ani prodávající, ani váš makléř.
Záleží mi na odvedení špičkové práce a na spokojenosti klienta. A dbám na svém dobrém jménu a pověsti. Za mě pak hovoří reference spokojených klientů.
Pokud jste dočetli až sem, máte můj obdiv a děkuji Vám. Pokud Vás cokoliv dalšího zajímá, neváhejte mě kontaktovat.
Rád se s Vámi sejdu, probereme vaše přání a představy. Zvu vás na kávu, čaj, nebo prostě na něco dobrého.